Sie sind hier:

Veröffentlichung nach Informationsfreiheitsgesetz

Städtebauliche Verträge

Im Stadtbezirk Nord sind städtebauliche Verträge zur Förderung und Sicherung der mit der Bauleitung verfolgten Ziele sowie zu anderen Zwecken geschlossen worden.

Vorhabenbezogener Bebauungsplan 47 Golfclub Br. Schweiz
Vorhabenbezogener Bebauungsplan 47 „Golfclub Br. Schweiz"

Der vorhabenbezogene Bebauungsplan 47 „Golfclub Bremer Schweiz“ für das Grundstück Wölpscher Straße 4, VR 152, Flurstücke 234/2 (Teil) und 232 (Teil) in Bremen-Blumenthal hatte den Bau eines Clubhauses für den Golfplatz Bremer Schweiz zum Ziel. Diesen vorhabenbezogenen Bebauungsplan begleitend wurde am 01.11.2021 ein Durchführungsvertrag (pdf, 304.7 KB) geschlossen.

Vorhabenbezogener Bebauungsplan 59 Fichtenhof
Vorhabenbezogener Bebauungsplan 59 „Fichtenhof“

Für den vorhabenbezogenen Bebauungsplan 59 „Fichtenhof“ zum Vorhaben Seniorenwohnanlage Zum Fichtenhof 1 (Flurstücke 65 und 66 und 743 der Flur VR 356) in Bremen-Burglesum ist der Durchführungsvertrag (pdf, 4.3 MB) am 18.10.2016 geschlossen worden.

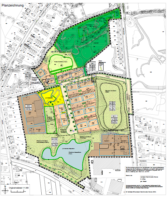
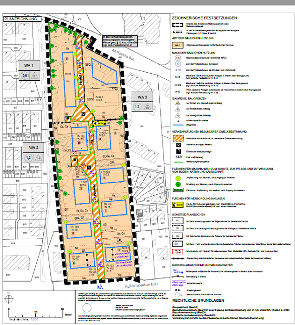
Vorhabenbezogener Bebauungsplan 107  An Rauchs Gut
Vorhabenbezogener Bebauungsplan 107 „An Rauchs Gut"

Für den vorhabenbezogenen Bebauungsplan 107 „An Rauchs Gut“ zur Errichtung von 39 Einfamilienhäusern zwischen An Rauchs Gut, Auf dem Hohen Ufer und östlich Finkenschlag in Bremen-Burglesum ist der Durchführungsvertrag (pdf, 18.5 MB) am 25.04.2019 geschlossen worden.

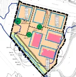
Vorhabenbezogener Bebauungsplan 109 Park Richardson
Vorhabenbezogener Bebauungsplan 109 „Park Richardson“

Für den vorhabenbezogenen Bebauungsplan 109 „Park Richardson“ zwischen Heriwardstraße Nr. 15, Richthofenstraße, An Rauchs Gut und Chaukenhügel ist der Durchführungsvertrag (pdf, 11.6 MB) am 17.09.2021 / 02.11.2021 geschlossen worden.

Vorhabenbezogener Bebauungsplan 110 Fährer Flur
Vorhabenbezogener Bebauungsplan 110 „Fährer Flur“

Für den vorhabenbezogenen Bebauungsplan 110 „Fährer Flur“ zur Errichtung von Wohngebäuden zwischen der Straße Fährer Flur, der Bundesautobahn A270, der Martin-Ecks-Straße und dem Grundstück Fährer Flur Nr. 43 in Bremen-Vegesack ist der Durchführungsvertrag (pdf, 8.8 MB) am 27.09.2021 geschlossen worden.

Vorhabenbezogener Bebauungsplan 111 Hartmannstift
Vorhabenbezogener Bebauungsplan 111 „Hartmannstift“

Für den vorhabenbezogenen Bebauungsplan 111 „Hartmannstift“ zur Errichtung von Wohn- und gemischtgenutzten Gebäuden in Bremen-Vegesack zwischen der Gerhard-Rolfs-Straße, der Albrecht-Roth-Straße und der Schulkenstraße ist der Durchführungsvertrag (pdf, 22.4 MB) am 15.10.2021 / 18.10.2021 geschlossen worden.

Für den vorhabenbezogenen Bebauungsplan 112 „Bahnhof Blumenthal“ zwischen Bahntrasse Farge – Vegesack, Gewerbegleis „Zur Westpier“, Landrat-Christians-Straße und Jenny-Ries-Platz in Bremen-Blumenthal ist ein Durchführungsvertrag und ein städtebaulicher Vertrag (pdf, 25.8 MB) am 01.12.2020 geschlossen worden.

Vorhabenbezogener Bebauungsplan 115 Vegesacker Heerstraße 111
Vorhabenbezogener Bebauungsplan 115 „Vegesacker Heerstraße 111“

Für den vorhabenbezogenen Bebauungsplan 115 „Vegesacker Heerstraße 111“ zur Bebauung zwischen der Bundesautobahn A270, Vegesacker Heerstraße und östlich der Straße „Sandersfeld" in Bremen-Vegesack ist der Durchführungsvertrag (pdf, 20.5 MB) am 22.02.2024 / 06.03.2024 geschlossen worden.

Vorhabenbezogener Bebauungsplan 116 Sedanplatz
Vorhabenbezogener Bebauungsplan 116 „Sedanplatz“

Für den vorhabenbezogenen Bebauungsplan 116 „Sedanplatz“ Am Sedanplatz in Bremen-Vegesack, zwischen Gerhard-Rohlfs-Straße Nr. 30-33, Bermpohlstraße Nr. 38-42, Kirchheide Nr. 51-55 und Am Sedanplatz Nr. 9 ist der Durchführungsvertrag (pdf, 6.5 MB) am 05.04.2023 / 11.04.2023 geschlossen worden.

Bebauungsplan 366 Dillener Quartier
Bebauungsplan 366 „Dillener Quartier“

Für den Bebauungsplan 366 „Dillener Quartier“ in Bremen-Blumenthal zwischen den Straßen Samlandstraße, Cranzer Straße, Turnerstraße, Striekenkamp, Neurönnebecker Straße und Am Rottpohl ist ein städtebaulicher Vertrag (pdf, 22 MB) am 15.11.2023 geschlossen worden.

Bebauungsplan 1218 Speicher Quartier
Bebauungsplan 1218 „Speicher Quartier“

Für den Bebauungsplan 1218 „Speicher Quartier" in Bremen-Vegesack im Bereich Vegesacker Hafen, Friedrich-Klippert-Straße, Zum Alten Speicher, Zum Alten Tief, Kantjespad und der Lesum ist ein städtebaulicher Vertrag (pdf, 29.3 MB) am 28.05.2020 geschlossen worden.

Bebauungsplan 1270 Friedensheimer Straße
Bebauungsplan 1270 „Friedensheimer Straße“

Für ein Bebauungsplan 1270 „Friedensheimer Straße“ in Bremen-Burglesum südwestlich der Friedensheimer Straße, ist ein städtebaulicher Vertrag (pdf, 1.8 MB) am 21.06.2021 / 28.06.2021 geschlossen worden.

Bebauungsplan 1278 Hindenburgstraße
Bebauungsplan 1278 „Hindenburgstraße“

Für den Bebauungsplan 1278 „Hindenburgstraße“ in Bremen-Burglesum südlich der Hindenburgstraße, westlich der öffentlichen Parkanlage Ihletal, nördlich der Bahnlinie Bremen-Burg / Bremen Vegesack ist ein städtebaulicher Vertrag (pdf, 2 MB) am 22.04.2022 / 18.05.2022 geschlossen worden.

Bebauungsplan 1285 George-Albrecht-Straße
Bebauungsplan 1285 „George-Albrecht-Straße"

Für den Bebauungsplan 1285 "George-Albrecht-Straße" in Bremen-Blumenthal zwischen Fresenbergstraße, öffentlichem Parkplatz P 2 Fresenbergstraße, George-Albrecht-Straße (beidseitig), Kapitän-Dallmann-Straße 24–34, Emmalene-Bulling-Straße (beidseitig) und Weserstrandstraße ist ein städtebaulich-freiraumplanerisches Konzept (pdf, 1.3 MB) geschlossen worden.

Bebauungsplan 1567 Teichquartier
Bebauungsplan 1567 „Teichquartier"

Für den Bebauungsplan 1567 "Teichquartier" in Bremen-Vegesack zwischen Meinert-Löffler-Straße, Gleisanlagen der Eisenbahnlinie Farge-Vegesack, Fährer Straße (rückwärtig), Am Becketal und Beckstraße (rückwärtig) ist ein städtebaulicher Vertrag (pdf, 18.8 MB) am 25.11.2020 geschlossen worden.

Bebauungsplan 1580 Kämmereiquartier
Bebauungsplan 1580 „Kämmereiquartier"

Für den Bebauungsplan 1580 „Kämmereiquartier“ in Bremen-Blumenthal unweit der Weser zw. Landrat-Christians-Straße, Zum Kammstuhl und dem Einzelhandel an der Weserstraße ist ein Durchführungsvertrag (pdf, 1 MB) am 05.02.2025 geschlossen worden.

Bebauungsplan 1627 An der Landesgrenze
Bebauungsplan 1627 „An der Landesgrenze“

Für den Bebauungsplan 1627 „An der Landesgrenze“ in Bremen Lüssum-Bockhorn südlich der Straße „An der Landesgrenze", nordöstlich der Straße „Im Neuen Kamp“ sowie im Übergang zum Landschaftsschutzgebiet „Binnendüne-Bockhorn Wölpscher Berg“ ist ein städtebaulicher Vertrag (pdf, 3.4 MB) am 25.06.2024 / 01.07.2024 geschlossen worden.

Bebauungsplan 1629 Steingut
Bebauungsplan 1629 „Steingut“

Für den Bebauungsplan 1629 „Steingut“ in Bremen-Vegesack zwischen der Bahnstrecke Bremen Hauptbahnhof - Bremen-Vegesack, Hermann-Fortmann-Straße, Kücksberg, Claus-Hinrich-Straße, Schönebecker Straße und dem Grohner Mühlenweg ist ein städtebaulicher Vertrag (pdf, 13 MB) am 15.05.2024 geschlossen worden.

Bebauungsplan 1632 Kücksberg
Bebauungsplan 1632 „Kücksberg"

Für den Bebauungsplan 1632 „Kämmereiquartier“ in Bremen-Vegesack rückwärtig der Straße Kücksberg 51 - 59, der Hermann-Fortmann-Straße 5 - 13 und rückwärtig anschließenden Grundstücken ist ein Durchführungsvertrag (pdf, 1.3 MB) am 29.04.2025 geschlossen worden.

Die Vereinbarung (pdf, 8.7 MB) ist hierzu am 28.03.2025 geschlossen worden.